Description
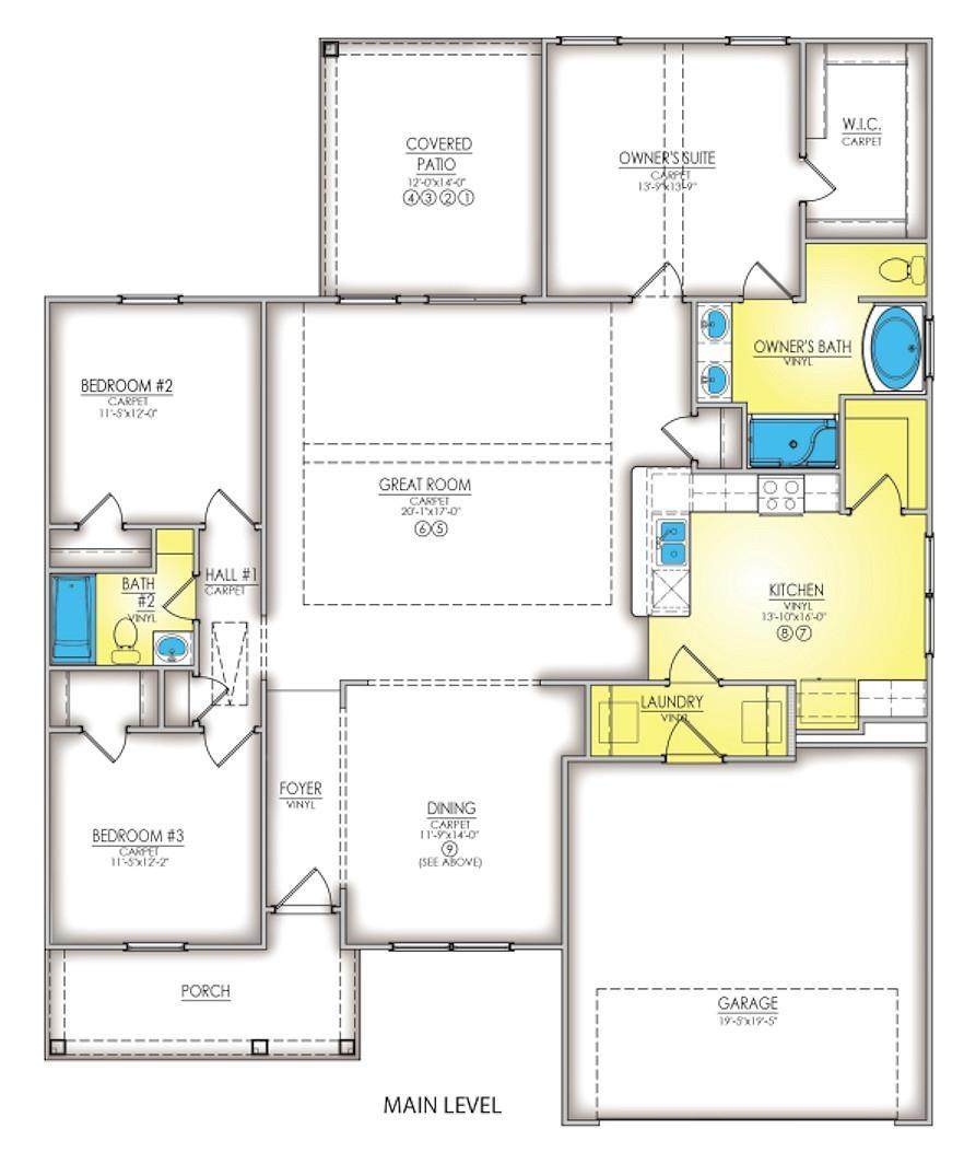
[]The Wisteria II-E is very popular with a high vaulted ceiling making it feel even more larger than it already is. Other options that compliment this floorplan are the beautiful quartz countertops along with the mosaic style backsplash! LVT flooring will run through the main areas of the home. The Owners suite features a walk-in shower, double vanities, private water closet and walk-in closet. Oversized covered rear patio, the list goes on. Natural Gas Community. Pricing, features, terms & availability are subject to change prior to the sale without notice or obligation. All measurements are approximate and must be verified by the Purchaser/ BuyersAgent. Photos are for illustrative purposes only and may be of similar house built elsewhere. Square footage is approximate and must be verified by the Purchaser/ Buyers Agent.
-
3BEDS
-
0.25ACRES
-
2BATHS
-
01/2 BATHS
-
1,773SQFT
-
$0$/SQFT
School Information
Description
[]The Wisteria II-E is very popular with a high vaulted ceiling making it feel even more larger than it already is. Other options that compliment this floorplan are the beautiful quartz countertops along with the mosaic style backsplash! LVT flooring will run through the main areas of the home. The Owners suite features a walk-in shower, double vanities, private water closet and walk-in closet. Oversized covered rear patio, the list goes on. Natural Gas Community. Pricing, features, terms & availability are subject to change prior to the sale without notice or obligation. All measurements are approximate and must be verified by the Purchaser/ BuyersAgent. Photos are for illustrative purposes only and may be of similar house built elsewhere. Square footage is approximate and must be verified by the Purchaser/ Buyers Agent.
Related Properties
© 2026 Coastal Carolinas Association of REALTORS® MLS. All rights reserved. IDX information is provided exclusively for consumers' personal, non-commercial use and may not be used for any purpose other than to identify prospective properties consumers may be interested in purchasing. Information is deemed reliable but is not guaranteed accurate by the MLS or North Beach Realty. The data relating to real estate for sale or lease on this web site comes in part from CCAR. Real estate listings held by brokerage firms other than North Beach Realty are marked with the CCAR logo or an abbreviated logo and detailed information about them includes the name of the listing broker.
Data last updated: 2026-03-06T23:20:49.153.